想了解帅康CXW-300-T8233油烟机优缺点曝光分析?用了两个月心得分享?
说真的帅康CXW-300-T8233,使用感受还不错的,包装非常用心,每个细节都做得很好,让人感觉很贴心。

帅康CXW-300-T8233价格参考:
帅康(Sacon)抽吸油烟机燃气灶套装 顶吸欧式家用大吸力烟灶套装24m3大风量 猛火聚能灶套装T8233+B88天然气价格:2399.00元!
帅康CXW-300-T8233配置参数:
商品名称:帅康CXW-300-T8233
烟机能效等级:一级能效
套装类型:烟灶套装
大静压:341-699Pa
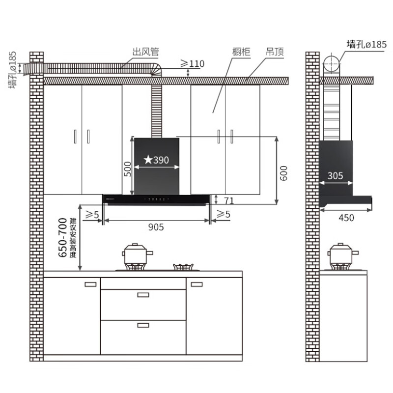
烟机安装尺寸:900±50mm
66dB(A)'>工作噪声:>66dB(A)

帅康CXW-300-T8233优缺点评测评价:
1、这个商品的性能稳定,使用起来非常顺畅。
2、这个商品的外观设计非常时尚大气,给人一种高级感。

3、这个商品的性价比非常高,性能很稳定,价格又合理,
4、这个商品的质量很好,用起来也很舒适。

5、物流速度快,快递小哥态度好,很仔细地把商品送到了我手上。
帅康CXW-300-T8233怎么样:
1、物流速度快,商品包装得很好,没有任何破损。
2、客服的服务真的很好,回答问题耐心细致,让我感到很贴心。

3、功能齐全,操作简单易上手,满足了对产品的各种需求。
4、物流速度快,商品包装完好无损。
5、物流速度很快,下单第二天就收到了,超出了期望。
ehqlbragodufevvaeowl